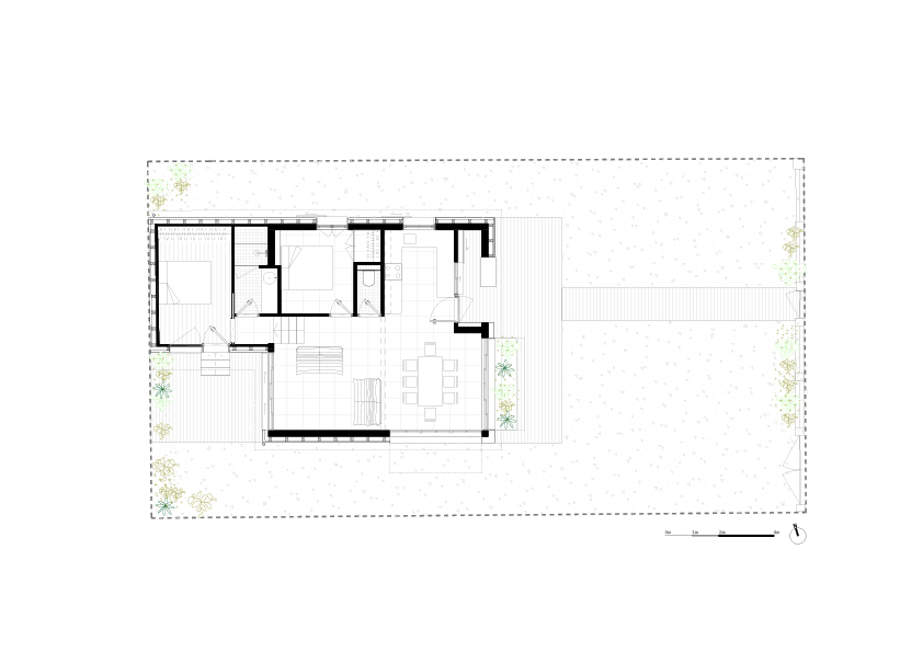
Le projet porte sur une maison de 53 m², située à 200 m de l’océan, construite dans les années 30 et sur son une extension de 17 m² imaginée dans la continuité de l’existant. L’extension est composée d’une chambre / salle d’eau. Son volume vient se glisser sous l’extension de la toiture conservée de la maison tout en se posant sur pilotis afin de respecter le plan du Littoral. Une enveloppe en bois entoure les murs existants constitués de briques pour l’existant et de murs en ossature bois pour l’extension. Le bardage fait écho aux granges landaises et aux modénatures du littoral aquitain. Des terrasses en bois proposent des espaces extérieurs plus structurés, sous lesquelles le sable règne. Des grandes baies créent un apport de lumière très généreux au sein du séjour autrefois sombre et cloisonné. Là, le séjour s’ouvre sur le paysage et sa charpente en bois est révélée afin de lui conférer un « espace cathédrale ». Au sol, il a été fait le choix de poser du carrelage, méticuleusement différent d’un espace à l’autre. Tantôt le sol est chaleureux, imitant le parquet, tantôt très graphique dans la salle d’eau avec son format carré de 10 cm par 10 cm et ses joints contrastés chocolat pour être davantage épuré dans le séjour.