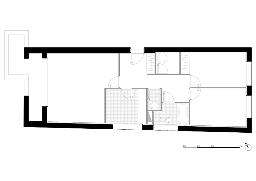
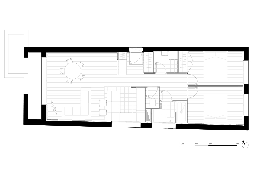
Rénovation d’un appartement de 70 m² à Bordeaux (33)

Surface 70 m²
Budget 50 000 € ttc

2024.

L’appartement situé en résidence n’avait jamais reçu de travaux de rénovation. L’occasion de remettre au goût du jour de nouveaux espaces, ambiances, couleurs et matériaux au logement.