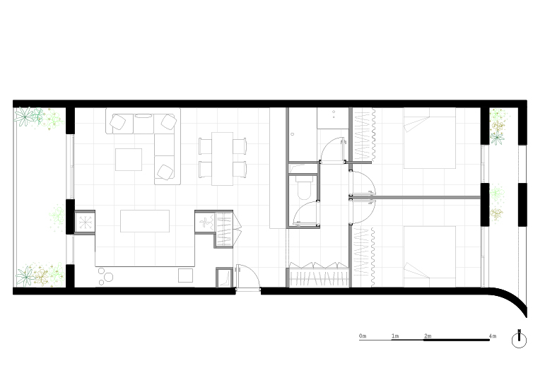
Dans un immeuble typique des années 80/90, cet appartement de 70 m² a fait l’objet d’une rénovation complète et sur mesure, visant à révéler tout son potentiel.

Le décloisonnement du séjour et de la cuisine, associé à une nouvelle palette de couleurs et à l’intégration de mobilier adapté, a permis de créer un espace à la fois chaleureux, fluide et épuré, dans lequel les habitants peuvent pleinement se projeter.

Le confort a été sensiblement amélioré grâce à l’installation de radiateurs plus performants et au choix de matériaux qualitatifs : plan de travail en quartz, rangements en bois, et reprise complète des peintures dans l’ensemble des pièces.

Les plafonds, marqués par les anciennes cloisons et des irrégularités de plâtre après la dépose, ont été entièrement repris, lissés puis repeints pour offrir une finition homogène et soignée.

Les atouts d’origine de l’appartement ont été préservés, notamment la distinction claire entre espace nuit et espace jour. Le séjour, orienté à l’ouest et prolongé par un balcon au 5ᵉ étage, bénéficie d’une vue dégagée sur Bordeaux et d’une lumière de fin de journée particulièrement agréable. La configuration traversante du logement favorise une ventilation naturelle efficace, de la loggia côté Est — qui joue un rôle de tampon avec la rue — jusqu’au séjour.

La cuisine a été pensée comme un véritable espace de vie : ouverte sur l’entrée grâce à un passe-plat discret, et largement connectée au séjour et au balcon, elle allie convivialité et fonctionnalité. Ses façades, inspirées du style mid-century avec un veinage en peuplier huilé foncé, dialoguent avec un plan de travail teinté sable. L’ensemble est mis en valeur par un voile béton conservé et mis à nu durant les travaux, qui traverse le logement et structure les espaces avec une écriture contemporaine affirmée.

Programme : Rénovation d’un appartement (33800)
Surface : 70 m2
Année : 2023

Entreprises :
Fam Cozinhas, cuisine en cp peuplier et plan de travail en quartz